BASSANI S.R.L. COSTRUZIONI EDILI DAL 1962

BASSANI S.R.L. COSTRUZIONI EDILI DAL 1962
VIA VALLORGANA 8
ASOLO TV 31011
0423/529421
3404942856
info@venetica.eu
9:00-12:30 15:00-18:00

BASSANI S.R.L. COSTRUZIONI EDILI DAL 1962

Costruiamo e Rinnoviamo la tua casa offrendo un servizio completo, chiavi in mano a costi contenuti, garantendo alta qualità ed efficienza. Con cinquant’anni d’esperienza in progettazione, costruzione, ristrutturazione e riqualificazione costruiremo il tuo sogno.
Proponiamo costruzioni chiavi in mano ad alta sostenibilità ambientale, ecologicamente compatibili, ad elevato risparmio energetico e di spiccato prestigio architettonico, realizzate o ristrutturate e riqualificate nel rispetto dei preventivi definiti con tempi certi e gestendo direttamente tutte le figure professionali necessarie, compreso l’eventuale accompagnamento al finanziamento bancario.

BASSANI S.R.L. COSTRUZIONI EDILI DAL 1962

Attraverso la convenzione con primario istituto bancario offriamo la possibilità di accesso agevolato a finanziamenti con predisposizione preventiva di piani economici e di esposizioni bancaria a misura sulle vostre necessità e disponibilità.

BASSANI S.R.L. COSTRUZIONI EDILI DAL 1962

VENETICA offre consulenze atte all’indagine e al supporto nell’acquisizione di tutte le autorizzazioni degli enti competenti, nello studio di fattibilità dell'intervento, accompagnandoti così fin dall’inizio, sino alla progettazione e alla costruzione della tua casa chiavi in mano.

BASSANI S.R.L. COSTRUZIONI EDILI DAL 1962

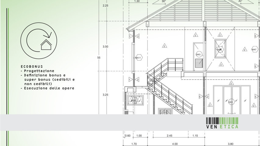
VENETICA è pronta ad assistervi sulle iniziative Edili ricomprese nei bonus e super bonus con un servizio completo:
- Progettazione
- Definizioni bonus e super bonus, cedibili e non cedibili.
- Esecuzione delle opere